SeminarhausPartner
0

Empfehlen

Ferienhof Brockzetel

Beschreibung

Wohnen

Ein Urlaubs-Paradies mitten in Ostfriesland. Ob Urlaub mit der Familie, mit Freunden oder mit einer andere Gruppe, auf unserem familiär geführten Ferienhof Brockzetel fühlt sich jeder wohl!

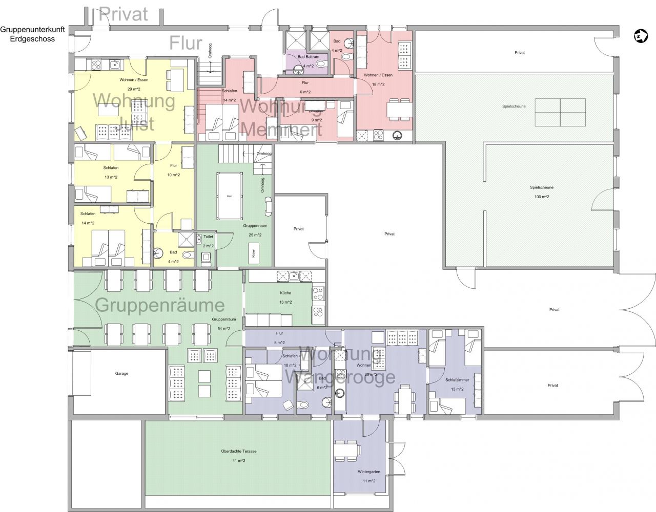
Die Unterkunft bietet Platz für 30 Personen und besteht aus 6 Ferienwohnungen mit insgesamt 12 Schlafzimmern, 8 Badezimmern, einer Gruppenküche mit angrenzendem, gemütlichen Aufenthaltsraum mit Billard- und Kickertisch und einer gemütlichen Sitzecke.

Über die Terrassentür hat man einen direkten Zugang zur großen überdachten Terrasse mit Blick auf den Kinderspielplatz.

Sowohl die Wohnungen als auch die Gemeinschaftsräume befinden sich praktischerweise in einem Haus.

Für Gruppen bis 34 Personen steht eine weitere Ferienwohnung mit zwei Schlafzimmer und einem Badezimmer zur Verfügung.

Lernen Sie uns und unseren Ferienhof Brockzetel kennen und schauen Sie sich in Ruhe um.

Verpflegung

Für Selbstversorger steht unser voll ausgestattete Gruppenküche zur Verfügung. Wenn sie selber nicht kochen möchten unterstützen wir Ihnen gerne bei die suche nach einen passenden Catering Service

Ausstattung der Zimmer

Die 6 Ferienwohnungen die zum Gruppenunterkunft gehören variieren von 1 bis 3 Schlafzimmer und 2 bis 10 Personen. Jede Ferienwohnung hat eine eigenen Küche, Wohnzimmer und Bad.

Tagen

Der Gruppenraum ist ca 80 m2 Groß und ist ausgestattet mit Tische und Stühle, Sitzecke, Billard und Kickertisch.

Freizeit

Auf dem Hof lässt sich vieles entdecken: tolle Spielplätze, einen Streichelzoo, ein großer Fuhrpark an Kinderfahrzeugen, unsere Ponys und vieles mehr.

Direkt am Hof gibt es einen 25.000 qm großen Badesee (nur für unsere Gäste) mit Sandstrand und ausreichend Liegewiesen. Tretboote fahren, Sandburgen bauen oder einfach schwimmen; hier bleiben keine Kinderwünsche offen.

Gruppenhaus in Aurich
Größter Raum ca. 80 m2
Bettenzahl: 30

Karte

Ausstattung

  • Verpflegungsart
    Selbstversorgung
  • Preisindex
    Übernachtung ab: 431 €
  • Tagen
    30 Teilnehmer
    7 Arbeitsräume
    Tageslicht
    WLAN
  • Zimmerausstattung
    WLAN
    TV
  • Zimmerarten
    8 Doppelzimmer
    3 3-Bett
    1 5-Bett
  • Freizeit
    Garten Park Natur
    Outdoorangebot
    Fußball
    Außensportanlage
    Wassersport
  • Verkehrsanbindung
    Entfernung IC-Bahnhof ca. 40 km
    Entfernung Bahnhof ca. 15 km
    Entfernung Flughafen ca. 100 km
  • Eignung
    Kindergruppen /Schulklassen
    Familienfeiern
    Haustiere erlaubt
    Indoor- & Outdoor-Events
    Freizeitgruppen
  • Lage
    ländlich

Keine Bewertungen vorhanden

Bewertung erstellen

Preise

Preis auf Anfrage


Verfügbare Seminarräume in diesem Haus

keine Räume eingestellt

Verfügbarkeit

geschlossen
belegt
auf Anfrage
frei

Mietbedingungen

Kaution300 € pauschal und pro Aufenthalt

Optional

Babybettauf Anfrage
Kinderstühleauf Anfrage

Nebenkosten

Handtücher / Bettwäscheauf Anfrage (vor Ort zahlbar)
Endreinigung300 € pauschal und pro Aufenthalt

Diese Unterkunft teilen

Kurzer Überblick

Gruppenhaus in 26605 Aurich
Lage: ländlich

Garten Park Natur, Outdoorangebot, Fußball, Außensportanlage, Wassersport

Tagungen bis 30 Personen
Größter Seminarraum: 80 qm

Räume zur Gruppennutzung

30 Betten in Zimmern
8 Doppelzimmer
4 Mehrbettzimmer


Preisorientierung
Pauschal ab 270 € pro nacht

Buchungsanfrage

Ferienhof Brockzetel

Ähnliche Objekte in 50 km Umgebung